Układ M-2 bez ścianek wydzielających pokoje

M-2 z układem otwartym

Masz inne pomysły na to jak rozplanować M-2? A może po prostu dobrze się czujesz w mieszkaniu typu studio? Wybierz M-2 wykończone jak wszystkie inne, ale bez podziału na pomieszczenia – oto układ otwarty na wiele opcji.

Jedyne wydzielone pomieszczenie to łazienka

M-2 zmierzone wzdłuż i wszerz

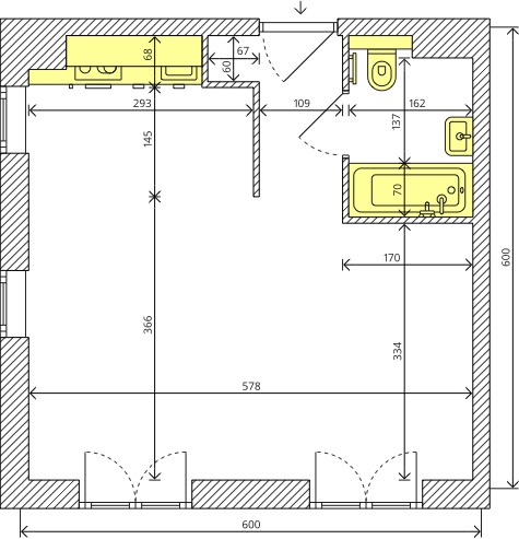
Sprawdź szczegółowe wymiary M-2 (podane w centymetrach). Łączna powierzchnia mieszkania to 32 m2. Zwróć uwagę na meble kuchenne i wyposażenie łazienki – wszystko to otrzymasz w ramach wykończenia i w cenie mieszkania.

Wymiary M-2 i pomieszczeń podane w centymetrach

Inne układy M-2

  1. Układ M-2 ze ścianą w kształcie litery L

    z większym pokojem dziennym

  2. Układ M-2 ze ścianą wydzielającą większy pokój

    z większą sypialnią

  3. Układ M-2 ze ścianą wydzielającą mniejszy pokój

    z pokojem dla dziecka